Кузнечное оборудование

Станок для холодной художественной ковки


Для изготовления фигурных деталей заборов, решеток и иных декоративных конструкций требуется пластическое деформирование заготовок: кручение, изгиб, смятие. Во многих случаях для этого применяется кузнечно-прессовое оборудование - дорогостоящее, энергоемкое и требующее специфических условий эксплуатации. Поэтому несомненный интерес представляет изготовление фигурных деталей методом холодного деформирования заготовок на кузнечном станке для холодной художественной ковки.

Документация - от 40 тыс.руб.
Изготовление станка – от 160 тыс. руб.
Изготавливается на универсальном металлорежущем и сварочном оборудовании. Занимаемая площадь - около 1 м2.
Вес 240 кг.
Электродвигатель - 1,5кВт.
Быстрая окупаемость.


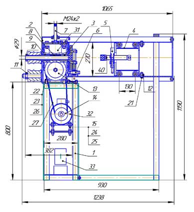
Техническая характеристика станка

Габариты, мм 1238х1000х1190
вес, кг 240;
электродвигатель, кВт 1,5
обороты на выходе, об/мин 9
крутящий момент, Н*м (кг*м) 900 (90)

Отличительные особенности станка
Все операции производятся независимо друг от друга. Снятия агрегатов  не требуется, только замена соответствующего инструмента (матриц; валков и др.) Конструкция станка отличается простотой и технологичностью.

 

Выполняемые фигурные элементы и комплектация станка:


Корзинка
Изготовление декоративных элементов типа «корзинка»

Корзинка
Закручивание стержней квадратного сечения - 10; 12; 16; 20 мм. Приспособление для изготовления элемента "торсион" Предназначено для изготовления элемента "торсион" (продольное скручивание) максимальной длины 130 см. Размеры сечения заготовки: Ø10, Ø12, Ø14, Ø16, Ø20 мм

Кольцо
Навивка пружин круглого или квадратного сечений, с последующей разрезкой в кольца или полукольца. Приспособление "Улитка-М1"для гибки завитков. Предназначена для изготовления элемента "завиток" особо малого размера. Размеры сечения заготовки: Ø8, Ø10, Ø12, Ø14, Ø16 мм

Завиток
Приспособление "Улитка универсальная". Предназначен для изготовления элементов "завиток" и "волюта" Размеры сечения заготовки: Ø8, Ø10, Ø12, Ø14, Ø16 мм

Волюта

Проектно-конструкторская документация

  • Документация выполнена с учетом всех требований ЕСКД.
  • Основная среда проектирования – это программа  КОМПАС 3D V7.
  • В состав проекта входят чертежи и спецификации модернизированного, более универсального станка, его узлов и деталей. Кроме того в проект включены чертежи базового комплекта приспособлений: прокатные ролики (2 вида); штампы для гибки завитков (2 шт.); матрицы для кручения квадрата (1 компл.); валки для навивки пружин (2 шт.); приспособление для изготовления «корзинок» (1 компл.).
  • Пакет конструкторской документации может  быть отправлен (по желанию заказчика):
    а) на бумажном носителе (бандеролью);
    б) в электронном виде (программа КОМПАС 3D V7);
    в) в электронном виде (в текстовом редакторе).

Документация отправляется в течение 3-х дней с момента оплаты.
Технологичность изделия
Для изготовления станка и приспособлений не требуются дефицитные материалы. Все детали изготавливаются на универсальном металлорежущем и сварочном оборудовании. Для повышения стойкости прокатных роликов и матриц требуется термообработка.
О технологичности изделия может говорить тот факт, что первый станок автор изготовил собственными руками в условиях экспериментального цеха ИСЗФ СО РАН.
Долговечность и окупаемость станка
Первый станок эксплуатируется 2года. За это время на нем изготовлены детали фигурных заборов, решеток, ворот (более 500 п.м.); каркасы 3-х куполов Солнечных телескопов; каркас планетария; каркасы теплиц; различные арки, витражи и многое другое.
Станок неоднократно окупил затраты на его изготовление.

Примеры изделий, изготовленных с использованием станка


Забор

Ворота

Решетка

Купол солнечного телескопа

Секция забора




email: ak@akitov.ru